Wysokość budynku – Dopasowana do przepisów i Twojej wizji

Wysokość budynku to nie tylko kwestia estetyki – to także warunek formalny określany przez miejscowy plan zagospodarowania przestrzennego lub decyzję o warunkach zabudowy. Dlatego każdy projekt możemy odpowiednio dostosować, aby spełniał wymagania urzędowe i jednocześnie odpowiadał Twoim oczekiwaniom.

Co możemy zmodyfikować w zakresie wysokości?

Wysokość ścian i kalenicy: Dostosowujemy wysokość budynku tak, aby mieściła się w wymaganych granicach – zarówno dla domów parterowych, jak i z poddaszem użytkowym lub piętrem.
Zmiana kąta nachylenia dachu: Zwiększając lub zmniejszając kąt dachu, możemy wpłynąć na całkowitą wysokość domu oraz ilość przestrzeni użytkowej na poddaszu.
Wersje niskie – idealne na działki z ograniczeniami: Jeśli plan miejscowy ogranicza wysokość budynku, przygotujemy wersję z niższą ścianką kolankową, aby spełnić wymogi.
Estetyka i proporcje: Dbamy o to, by modyfikacje wysokości nie zaburzyły harmonii bryły – dom będzie nadal prezentował się solidnie i elegancko.

Każdy projekt traktujemy indywidualnie, dlatego dopasowanie wysokości budynku do Twojej działki i lokalnych przepisów to dla nas standard. Dzięki temu zyskujesz pewność, że budowa przebiegnie bez komplikacji, a efekt końcowy będzie zgodny z Twoją wizją.

Opis dotyczy domu o standardzie premium.

Wymiary – Dopasujemy dom do Twojej działki

Każda działka jest inna – dlatego nie ograniczamy się do sztywnych schematów. Projektujemy domy z bali o wymiarach dopasowanych do możliwości Twojej przestrzeni, jej ukształtowania oraz lokalnych przepisów.

Jak możemy dostosować wymiary budynku?

Indywidualne dostosowanie szerokości i długości: Możemy zmienić proporcje budynku tak, by idealnie wpisać się w szerokość frontu działki lub dostosować długość elewacji bocznych.
Uwzględnienie ograniczeń zabudowy: Dostosowujemy projekt do linii zabudowy, wymaganych odległości od granic działki czy stref ochronnych – wszystko zgodnie z MPZP lub warunkami zabudowy.
Dostosowanie wysokości budynku: Jeśli plan miejscowy tego wymaga, możemy odpowiednio zmodyfikować wysokość ścian czy kalenicy, zachowując przy tym estetykę projektu.
Kompaktowe wersje na małe działki: Tworzymy wersje o mniejszych wymiarach zabudowy przy zachowaniu funkcjonalnego układu wnętrz – idealne rozwiązanie na wąskie lub trudne działki.
Optymalizacja pod kątem światła i stron świata: Na etapie projektu możemy też zmodyfikować rozmieszczenie okien, tarasu i pomieszczeń względem stron świata – aby maksymalnie wykorzystać naturalne światło.

Z nami nie musisz się martwić, czy dom „zmieści się” na Twojej działce. Dostosujemy jego wymiary tak, aby był zgodny z przepisami i jednocześnie wygodny oraz funkcjonalny.

Opis dotyczy domu o standardzie premium.

Powierzchnia – Dom dopasowany do Twojej przestrzeni

Nie musisz wybierać między gotowymi metrażami – u nas to Ty decydujesz, jak dużego domu potrzebujesz. Nasze projekty są elastyczne i mogą zostać powiększone lub pomniejszone w zależności od wielkości działki, liczby domowników czy budżetu.

Jak możemy dostosować powierzchnię domu?

Zmiana wymiarów zabudowy: Możemy proporcjonalnie zmienić długość i szerokość budynku, zachowując jego styl i funkcjonalność. To idealne rozwiązanie, gdy działka ma niestandardowe wymiary.
Dodanie lub usunięcie pomieszczeń: Zwiększenie powierzchni pozwala dodać np. dodatkową sypialnię, garderobę czy większy salon. Możemy też zmniejszyć dom, jeśli zależy Ci na bardziej kompaktowej wersji.
Optymalizacja przestrzeni: Pomagamy tak zagospodarować metraż, aby dom był wygodny i funkcjonalny bez względu na jego wielkość – oferując np. otwartą strefę dzienną czy sprytne rozwiązania do przechowywania.

Wybierając nasz dom z bali, nie ograniczasz się do jednego wariantu powierzchni. To Ty decydujesz, ile metrów kwadratowych będzie mieć Twój wymarzony dom – my zajmiemy się resztą.

Opis dotyczy domu o standardzie premium.

Pozwolenie na budowę – Z nami przejdziesz przez ten proces bez stresu

Budowa domu to nie tylko wybór projektu, ale też formalności. Dlatego oferujemy pełne wsparcie w zakresie uzyskania pozwolenia na budowę – tak, aby cały proces przebiegł sprawnie i bez niepotrzebnych nerwów.

Co oferujemy w ramach pomocy?

Dostosowanie projektu do wymogów lokalnych: Na podstawie miejscowego planu zagospodarowania przestrzennego (MPZP) lub warunków zabudowy dopasowujemy projekt do wymogów formalnych konkretnej działki – np. kąt nachylenia dachu, wysokość budynku czy linie zabudowy.
Pomoc w kompletowaniu dokumentacji: Doradzamy, jakie dokumenty są potrzebne do złożenia wniosku o pozwolenie – w tym wypis z MPZP, warunki przyłączenia mediów czy mapa do celów projektowych.
Projekt do pozwolenia (PB): Przygotowujemy projekt konstrukcyjny dla architekta w wersji wymaganej do uzyskania pozwolenia na budowę.
Współpraca z lokalnymi projektantami: Na życzenie możemy współpracować z architektem adaptującym projekt do Twojej działki oraz warunków technicznych, jeśli wymaga tego urząd.
Konsultacje i doradztwo: Jesteśmy dostępni na każdym etapie – wyjaśniamy procedury, podpowiadamy rozwiązania, monitorujemy postępy.

Dzięki naszemu doświadczeniu, proces uzyskania pozwolenia na budowę staje się jasny i przewidywalny. Pomagamy Ci skupić się na tym, co najważniejsze – budowie wymarzonego domu.

Opis dotyczy domu o standardzie premium.

Ilość pomieszczeń – Dopasuj przestrzeń do swojego stylu życia

Nie narzucamy gotowych schematów – to Ty decydujesz, ile i jakie pomieszczenia ma zawierać Twój dom. Dzięki indywidualnemu podejściu projektowemu jesteśmy w stanie stworzyć układ funkcjonalny, który w pełni odpowiada Twoim potrzebom – zarówno jeśli marzysz o przestronnej strefie dziennej, jak i o dodatkowym gabinecie, spiżarni czy garderobie.

Jak możesz dostosować ilość pomieszczeń?

Zmiana układu wnętrz: Możemy przeprojektować wnętrze domu w taki sposób, aby zwiększyć lub zmniejszyć liczbę pokoi, dopasować je do liczby domowników lub konkretnych funkcji.
Łączenie i dzielenie przestrzeni: Zaproponujemy rozwiązania umożliwiające łączenie kuchni z salonem, tworzenie otwartych przestrzeni lub wręcz przeciwnie – wydzielenie zamkniętych, kameralnych pokoi.
Dodatkowe pomieszczenia pomocnicze: Jeśli potrzebujesz pralni, spiżarni, kotłowni, pomieszczenia gospodarczego czy domowego biura – wszystko to jesteśmy w stanie uwzględnić w projekcie.

Twoje potrzeby są naszym punktem wyjścia. Każdy dom może mieć inną historię i przeznaczenie – my zadbamy, by przestrzeń wewnątrz była jak najlepiej do niej dopasowana.

Opis dotyczy domu o standardzie premium.

Modyfikacja – Dom szyty na miarę Twoich potrzeb

Każdy z naszych domów z bali może zostać w pełni dostosowany do indywidualnych potrzeb i preferencji klienta. Nasza fabryka oferuje szeroki zakres modyfikacji, dzięki czemu Twój wymarzony dom idealnie wpasuje się w charakter działki oraz spełni wszystkie oczekiwania funkcjonalne i estetyczne.​

Zakres możliwych modyfikacji:

Konstrukcja budynku: Dostosowujemy wymiary i układ pomieszczeń, aby maksymalnie wykorzystać przestrzeń działki i zapewnić komfort użytkowania.
Kąt nachylenia dachu: Zmiana kąta nachylenia dachu pozwala na optymalne dopasowanie do warunków lokalnych oraz planów zagospodarowania przestrzennego.
Okna i drzwi: Oferujemy możliwość zmiany wielkości, kształtu oraz rozmieszczenia okien i drzwi, co pozwala na lepsze doświetlenie wnętrz oraz dopasowanie do indywidualnych upodobań.
Dostosowanie do działki: Uwzględniamy ukształtowanie terenu, ekspozycję na słońce oraz inne cechy działki, aby zaprojektować dom, który harmonijnie wpisuje się w otoczenie.

Dzięki tym możliwościom, Twój dom z bali będzie nie tylko funkcjonalny, ale również unikalny i w pełni odpowiadający Twoim potrzebom. Skontaktuj się z nami, aby omówić szczegóły i rozpocząć proces tworzenia Twojego wymarzonego domu.

Opis dotyczy domu o standardzie premium.

Kąt dachu – Estetyka, funkcjonalność i zgodność z przepisami

Kąt nachylenia dachu to nie tylko element wizualny – ma ogromny wpływ na wygląd budynku, ilość przestrzeni na poddaszu, a także zgodność z lokalnymi przepisami. Dlatego w naszych projektach możesz swobodnie dostosować kąt dachu, aby dom w pełni odpowiadał Twoim oczekiwaniom i warunkom działki.

Jakie możliwości oferujemy?

Pełna modyfikacja kąta dachu: Dostosowujemy nachylenie dachu do wymagań miejscowego planu zagospodarowania przestrzennego (MPZP) lub warunków zabudowy – czy to 18°, 20°, 30°, 35°, 40° czy inny wymagany kąt.
Dostosowanie do stylu architektonicznego: Niższy kąt dachu sprawdzi się w nowoczesnych, minimalistycznych bryłach, a bardziej strome dachy dodają uroku domom w stylu tradycyjnym lub skandynawskim.
Funkcjonalność poddasza: Większy kąt dachu to więcej przestrzeni użytkowej na poddaszu – idealne rozwiązanie, jeśli planujesz dodatkowe pokoje, garderobę czy łazienkę na górze.
Optymalizacja pod kątem klimatu: W rejonach o dużych opadach śniegu lub deszczu, bardziej stromy dach zapewnia lepszy spływ wody i śniegu – co zwiększa trwałość konstrukcji.

U nas nie musisz wybierać kompromisu między estetyką a funkcjonalnością. Dostosujemy kąt nachylenia dachu tak, by dom wyglądał świetnie, był praktyczny i zgodny z przepisami lokalnymi.

Opis dotyczy domu o standardzie premium.

Izolacja ścian (standard WT2021)

Dom z bali może być nowoczesny, energooszczędny i w pełni zgodny z aktualnymi przepisami. Nasze domy mieszkalne projektujemy zgodnie z wymogami WT2021.

Co to oznacza w praktyce?

Ocieplenie ścian wysokiej jakości wełną skalną
Okna trzyszybowe
Izolowane drzwi zewnętrzne 
Odpowiednia wysokość pomieszczeń (min. 2,5 m) i szerokość przejść
Przegrody zewnętrzne spełniające wymogi izolacyjności
Całkowite zapotrzebowanie na energię EP ≤ 70 kWh/(m²·rok)
Możliwość dopasowania systemu ogrzewania do charakterystyki budynku

Twój dom z bali będzie spełniał wszystkie obowiązujące normy – bez kompromisów."

Opis dotyczy domu o standardzie premium.

Transport – indywidualna kalkulacja

Kalkulacja transportu jest zależna od:

Odległości działki od siedziby firmy DOM-POL
Możliwości dojazdu do miejsca montażu pojazdem ciężarowym

Kalkulacja jest wykonywana indywidualnie, koszty transportu w zależności od powyższych opcji mogą wahać się między 2000 a 10000 PLN lub więcej ( pracujemy w całej Polsce) Zapraszamy do kontaktu, aby ustalić indywidualne rozwiązane dla Ciebie!

Opis dotyczy domu o standardzie premium.

Do wyboru 4 rodzaje balika:
45 mm, opcja standard
58 mm, solidna konstrukcja, więcej ciepła
70 mm, dobre właściwości termiczne bez ocieplenia
94 mm,  pełen komfort termiczny bez ocieplenia

Opis dotyczy domu o standardzie premium.

Ekonomiczny

W produktach EKONOMICZNYCH najważniejszym czynnikiem jest cena, któremu podporządkujemy wszystkie pozostałe aspekty:

opcjonalna możliwość dokonywania zmian w konstrukcji, czasem ograniczona ryzykiem utraty trwałości
jakość materiału, drewno klasy A/B, pochodzenie drewna
dokładność obróbki
okres gwarancji
metoda montażu
trwałość konstrukcji
dobór opcji dodatkowych
Premium

W tej grupie głównym czynnikiem jest trwałość i wygoda:

możliwość dokonania dowolnych zmian w projektach celem pełnego dopasowania do wymagań Klienta – Produkt dopasowany w 100% do Twoich potrzeb!
najwyższej jakości drewno klasy A, materiał pozyskiwany ze Skandynawii, wielokrotnie trwalsze materiały, gęstsze ułożenie słoi w drewnie, przez skróconą wegetację. Pochodzenie potwierdzone certyfikatem! Fabrycznie klejone bale – Dla Ciebie Komfort i prestiż !
najwyższy osiągalny technicznie standard obróbki, konstrukcja przygotowana we własnym studio projektowym, Produkt na miarę Twoich wymagań !
obróbka wykonywana na najwyższej klasy maszynach Hunegger K2i 
wielokrotnie dłuższa gwarancja (10/15lat) – Spokój na długie lata !
montaż z wykorzystaniem niespotykanych rozwiązań technologicznych, dylatacja podłoża, trójwarstwowa izolacja, pręty kompresyjne, klejenie węgłów, Niespotykane na rynku rozwiązana !
konstrukcje PREMIUM prawidłowo konserwowane to Domy dla pokoleń !
materiały wykorzystywane do opcji dodatkowych to najlepszy i najtrwalszy wybór na rynku, nasz gont dachowy importowany z USA posiada Dożywotnią gwarancję !

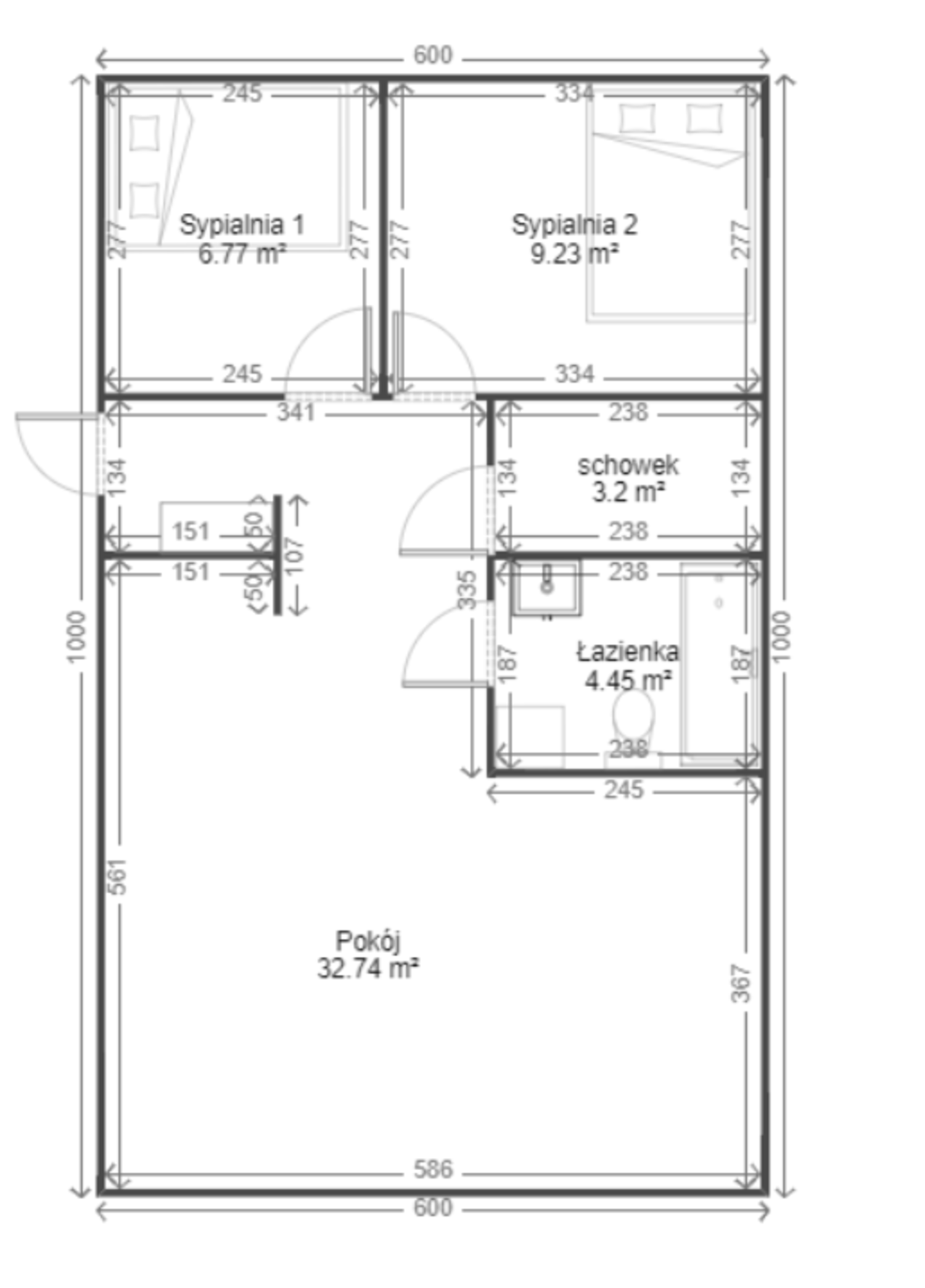
Dom całoroczny/mieszkalny Aleks 60m²

Rzuty:


Opis:

Kalkulacja netto, 23% vat budynek rekreacyjny, 8% vat budynek mieszkalny

Model Aleks to kwintesencja funkcjonalnej prostoty i elegancji, ujęta w klasycznej, parterowej bryle. Zaprojektowany z myślą o inwestorach, którzy stawiają na minimalizm bez kompromisów, ten dom z bali w standardzie PREMIUM udowadnia, że 60 m² powierzchni może stać się pełnowartościowym, całorocznym azylem.

W DOM-POL wierzymy, że prawdziwy luksus kryje się w harmonii – dlatego model Aleks łączy rzemieślniczą precyzję wykonania z nowoczesnym podejściem do architektury drewnianej. To propozycja dla tych, którzy odrzucają powtarzalność domów szkieletowych na rzecz trwałości bali i unikalnego mikroklimatu, który sprzyja regeneracji sił każdego dnia.

Inżynieria przestrzeni – wygoda na jednym poziomie

Dom Aleks wyróżnia się przemyślaną konstrukcją o wymiarach podstawy 1000 × 600 cm, która całą swoją kubaturę skupia na jednej kondygnacji. Brak schodów i progów to nie tylko oszczędność miejsca, ale przede wszystkim bezpieczeństwo oraz najwyższa wygoda dla rodzin z dziećmi oraz seniorów. Wysokość budynku wynosząca 348 cm nadaje wnętrzom optycznej przestronności, a jednocześnie pozwala na zachowanie kameralnego, przytulnego charakteru obiektu. Układ został podzielony na 6 pomieszczeń, co daje szerokie pole do popisu przy aranżacji salonu, sypialni oraz zaplecza gospodarczego.

Co istotne, oferujemy pełną modyfikację konstrukcji – od przesunięcia ścian działowych, po indywidualny dobór stolarki okiennej i drzwiowej, tak aby Aleks stał się domem skrojonym pod Twój styl życia.

Światło i natura – integracja domu z bali z Twoim ogrodem

Wyjątkowość modelu Aleks tkwi w jego zdolności do naturalnego stapiania się z otaczającym krajobrazem. Dzięki parterowej konstrukcji, każde z pomieszczeń może mieć bezpośredni kontakt z naturą, co optycznie powiększa przestrzeń mieszkalną. Prosta, długa linia budynku pozwala na zastosowanie dużych przeszkleń, które wpuszczają do wnętrza mnóstwo naturalnego światła, podkreślając rysunek słojów na ścianach z bali. Możliwość modyfikacji otworów okiennych sprawia, że możesz samodzielnie zdecydować, z której strony domu chcesz witać wschodzące słońce, tworząc intymną relację między wnętrzem a ogrodem.

Szybka realizacja i całoroczna trwałość

Największą przewagą techniczną modelu Aleks jest możliwość jego budowy bez konieczności uzyskiwania pozwolenia. To idealne rozwiązanie dla osób, które chcą uniknąć biurokracji i szybko cieszyć się własnym domem z bali. Mimo swojej lekkości wizualnej, jest to budowla solidna i trwała.

W DOM-POL kładziemy ogromny nacisk na parametry termoizolacyjne – stosujemy wyłącznie profesjonalne materiały o gwarantowanej jakości, które montujemy zgodnie z najwyższymi standardami technologicznymi. Dzięki temu parterowa konstrukcja z bali staje się wysoce energooszczędna, utrzymując optymalne ciepło zimą i kojący chłód podczas upalnych dni.

Dom, który pracuje na Twoje zdrowie

Wybierając model Aleks, inwestujesz w autentyczną technologię z bali, która diametralnie różni się od domów szkieletowych pod względem mikroklimatu i wytrzymałości. Naturalne drewno pełni tu rolę naturalnego filtra powietrza i regulatora wilgotności, co bezpośrednio przekłada się na jakość snu i ogólne samopoczucie mieszkańców.

Niezależnie od przeznaczenia budynku, standard PREMIUM w modelu Aleks to przede wszystkim wolność wyboru i zaawansowane opcje doposażenia, które pozwalają w pełni wykorzystać potencjał litego bala i dostosować estetykę domu do Twojej wizji.

Twoja bezpieczna przystań na lata

Model Aleks stanowi fundament do stworzenia miejsca, które z biegiem lat będzie nabierać coraz większej wartości, stając się azylem dla kolejnych pokoleń. Realizacja tego projektu to proces, w którym nowoczesny minimalizm spotyka się z tradycyjnym rzemiosłem, a my dbamy o to, by każdy etap budowy przebiegał sprawnie i zgodnie z najwyższymi standardami inżynieryjnymi.

Zapraszamy do kontaktu z naszymi ekspertami – wspólnie przeanalizujemy potencjał Twojej działki i pomożemy Ci skonfigurować model Aleks tak, aby stał się idealnym odzwierciedleniem Twojej wizji komfortowego życia w domu z bali.

Dom całoroczny/mieszkalny Aleks 60m²

Dane techniczne:

  • Standard domu: PREMIUM
  • Modyfikacja: Możliwość pełnej modyfikacji (konstrukcja, okna, drzwi)
  • Ilość pomieszczeń: 6
  • Pozwolenie na budowę: Nie wymaga
  • Powierzchnia: 60 m²
  • Wymiary: 600×1000
  • Wysokość budynku: 348cm
  • Kąt nachylenia dachu: 18°
  • Kategoria: całoroczne domy z bali, letniskowe domy z bali, mieszkalne WT-2021, parterowe domy z bali

Transport – indywidualna kalkulacja

Wybierz swoją konfigurację

93 900,00 

Wybierz grubość ściany:





Wybierz usługi dodatkowe:











Wyślij kalkulację mailem