Kalkulacja netto, 23% vat budynek rekreacyjny, 8% vat budynek mieszkalny
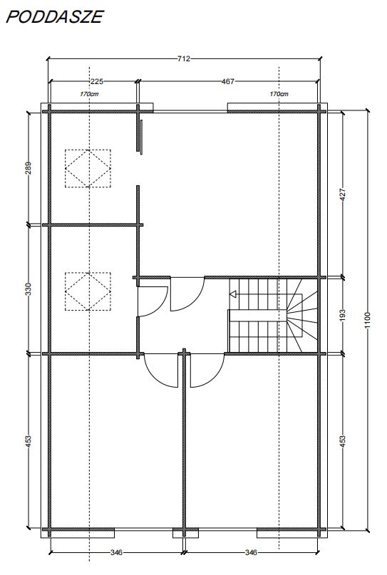
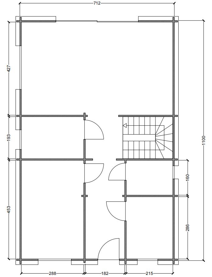
Dom całoroczny/mieszkalny Brajan 156m²
Jeśli szukasz domu, który łączy naturalne piękno drewna z nowoczesną funkcjonalnością, Brajan 156 m² spełni Twoje oczekiwania z nawiązką. To reprezentacyjny, całoroczny dom drewniany w standardzie PREMIUM, zaprojektowany z myślą o komforcie dużej rodziny, przestrzeni do życia i pracy, a także możliwości adaptacji na wiele sposobów.
Zachwyca nie tylko wyglądem, ale przede wszystkim przestronnością – 11 funkcjonalnych pomieszczeń rozplanowanych na dwóch pełnowymiarowych kondygnacjach po 78 m² każda. To dom, w którym naprawdę można się rozgościć.
Dom szyty na miarę – elastyczność od fundamentów po dach
Brajan to projekt, który daje Ci pełną kontrolę nad układem przestrzeni, pozwalając na stworzenie idealnego miejsca do życia. Niezależnie od tego, czy potrzebujesz dodatkowego gabinetu, dwóch łazienek, czy przestronnego pokoju gościnnego, masz możliwość dostosowania każdego elementu wnętrza. Zmieniaj układ ścian, rozmieszczenie okien i drzwi, tworząc przestrzeń, która odpowiada na potrzeby i styl życia Twojej rodziny.
Dzięki drewnianej konstrukcji projekt Brajan nie tylko daje ogromną elastyczność już na etapie realizacji, ale również oferuje łatwość w przyszłych modyfikacjach, jeśli zajdzie taka potrzeba. To dom, który rozwija się razem z Tobą, dostosowując się do zmieniających się wymagań.
Dom z charakterem – na wiele lat
Brajan wymaga pozwolenia na budowę, ale to inwestycja, która na pewno się opłaca. Otrzymujesz pełnoprawny dom całoroczny, który nie tylko spełnia wszelkie normy energooszczędności i trwałości, ale również zachwyca przytulnym, naturalnym charakterem drewnianej konstrukcji. To dom, który jest gotowy na intensywne użytkowanie przez długie lata – nie tylko zachwyca estetyką, ale przede wszystkim imponuje solidnością. Dzięki wysokiej jakości materiałom i starannemu wykonaniu, stanowi idealne połączenie piękna i trwałości, zapewniając komfort i bezpieczeństwo przez wiele lat.
PREMIUM w każdym detalu
Wersja PREMIUM to nie tylko estetyka, ale także doskonała izolacja termiczna, nowoczesne rozwiązania konstrukcyjne i najwyższej klasy drewno. Precyzyjne wykonanie zapewnia komfort cieplny zimą i przyjemny chłód latem, podnosząc jakość codziennego życia. Dzięki zastosowanym materiałom dom jest nie tylko piękny, ale również energooszczędny, co przekłada się na niższe koszty eksploatacji. To idealne rozwiązanie dla osób szukających harmonii między funkcjonalnością a stylem.
Brajan 156 m² – dla tych, którzy myślą o przyszłości
Brajan to więcej niż dom. To przestrzeń do życia, do pracy, do budowania wspomnień. Dzięki przemyślanemu projektowi i pełnej możliwości personalizacji, staje się naturalnym wyborem dla rodzin, które chcą mieszkać w przestronnym, trwałym i estetycznym domu.
Chcesz dowiedzieć się więcej? Skontaktuj się z nami! Zespół DOM-POL pomoże Ci zrealizować Twoje marzenia o domu z drewna. Zbudujmy razem coś wyjątkowego!
















