Kalkulacja netto, 23% vat budynek rekreacyjny, 8% vat budynek mieszkalny
Combi 70 m² to zaawansowany technologicznie dom całoroczny, w którym naturalna konstrukcja z bali współgra z nowoczesnym podejściem do komfortu użytkowego. W standardzie PREMIUM otrzymujesz budynek o podwyższonych parametrach trwałości i estetyki, zaprojektowany z myślą o wieloletniej, intensywnej eksploatacji. Zintegrowana sauna nadaje obiektowi unikalny charakter, podnosząc jego standard funkcjonalny i nadając mu wymiar przestrzeni, która realnie wpływa na codzienny dobrostan mieszkańców.
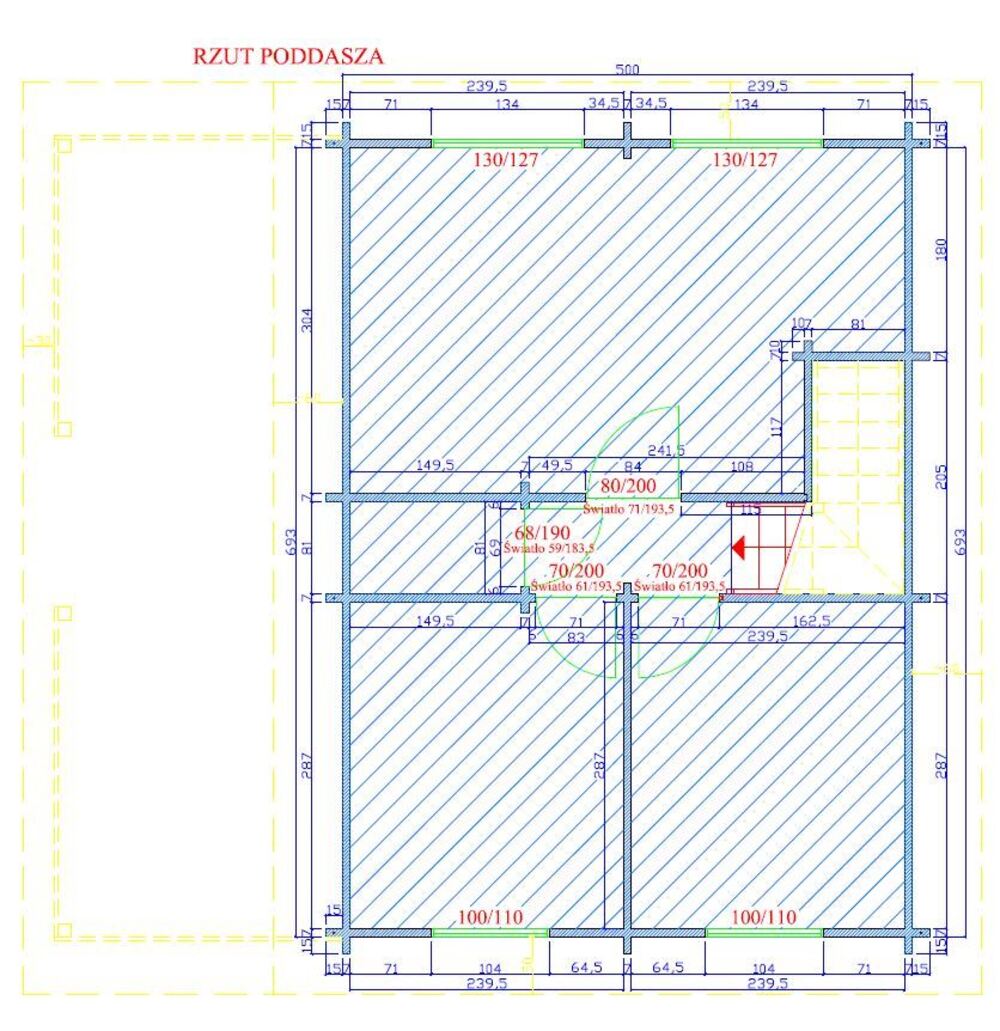
Przemyślana architektura – 7 pomieszczeń
Dom oferuje 70 m² powierzchni użytkowej (35 + 35 m²) podzielonej na 7 pomieszczeń, których rozmieszczenie odpowiada potrzebom zarówno domowników, jak i osób planujących rekreacyjne lub hybrydowe wykorzystanie obiektu. Układ został opracowany tak, aby maksymalnie wykorzystać metraż: strefa dzienna otrzymuje odpowiednią ilość światła i miejsca do aktywności, natomiast część prywatna zapewnia komfort i wyciszenie.
Naturalne drewno, dzięki swojej gęstości, mikrostrukturze oraz właściwościom termoizolacyjnym, efektywnie stabilizuje temperaturę i wspiera utrzymanie korzystnego mikroklimatu wewnętrznego. W połączeniu z profesjonalnie wykonaną warstwą izolacyjną zapewnia to wysoki komfort cieplny przez cały rok – co jest szczególnie istotne w domach przeznaczonych do użytkowania całorocznego.
Sauna w zabudowie – element podnoszący standard i wartość inwestycji
Włączenie sauny do struktury domu nie jest jedynie dodatkiem, ale świadomą decyzją konstrukcyjną, która zmienia sposób, w jaki użytkownicy korzystają z przestrzeni. Regularne korzystanie z sauny wpływa na regenerację organizmu, wspiera odporność i redukcję napięcia, a jej stała obecność w budynku podnosi zarówno komfort, jak i wartość całej inwestycji. W modelu Combi sauna stanowi integralny komponent, a nie element dobudowany – dzięki czemu zachowane są parametry szczelności, bezpieczeństwa oraz pełna spójność estetyczna.
Taras 17,5 m² – funkcjonalne rozszerzenie przestrzeni mieszkalnej
Dom Combi 70 m² został wyposażony w taras o wymiarach 250×700 cm – zaprojektowany jako naturalne przedłużenie strefy dziennej i wellness. To powierzchnia, która doskonale sprawdza się jako miejsce odpoczynku po sesji w saunie, przestrzeń do pracy na świeżym powietrzu lub strefa relaksu w ciągu dnia. Drewniana konstrukcja tarasu zapewnia spójność stylistyczną z bryłą budynku i podkreśla jego naturalny, ponadczasowy charakter.
Pełna możliwość modyfikacji – dom szyty na miarę
Model Combi 70 m², zgodnie ze standardem DOM-POL, oferuje szeroki zakres personalizacji. Zmianie mogą podlegać zarówno elementy konstrukcyjne, jak i detale architektoniczne: układ pomieszczeń, rodzaj okien i drzwi, a także konfiguracja strefy wellness. Dzięki temu każdy inwestor może uzyskać dom idealnie dopasowany do potrzeb – niezależnie od tego, czy priorytetem jest funkcjonowanie całoroczne, weekendowe, czy rekreacyjne. Warto podkreślić, że budowa tego modelu nie wymaga pozwolenia na budowę (wystarczy zgłoszenie), co znacząco skraca formalności i przyspiesza proces realizacji.
Dom całoroczny/mieszkalny Combi z sauną 70m² – zaufaj jakości DOM-POL!
Combi 70 m² to propozycja dla inwestorów, którzy poszukują domu łączącego wysokie parametry użytkowe, trwałość konstrukcji z bali oraz dodatkowe funkcje wpływające na komfort życia. To nowoczesne, profesjonalnie opracowane rozwiązanie, które spełni oczekiwania najbardziej wymagających użytkowników.
Skontaktuj się z DOM-POL, aby uzyskać indywidualną wycenę i poznać możliwości konfiguracji modelu Combi 70 m².












































