Dom w stylu dworku – całoroczny/mieszkalny 105m²
Dom typu dworek to klasa sama w sobie. Są domy, które po prostu spełniają swoją funkcję. Ale są też takie, które inspirują, dają poczucie spokoju i stają się przestrzenią, gdzie naprawdę można żyć – nie tylko mieszkać. Dworek 105 m² to właśnie taka propozycja. Całoroczny, parterowy dom drewniany – dworek o wyjątkowej elegancji, stworzony z myślą o ludziach, którzy cenią klasykę z nutą nowoczesności, funkcjonalność na co dzień i kontakt z naturą.
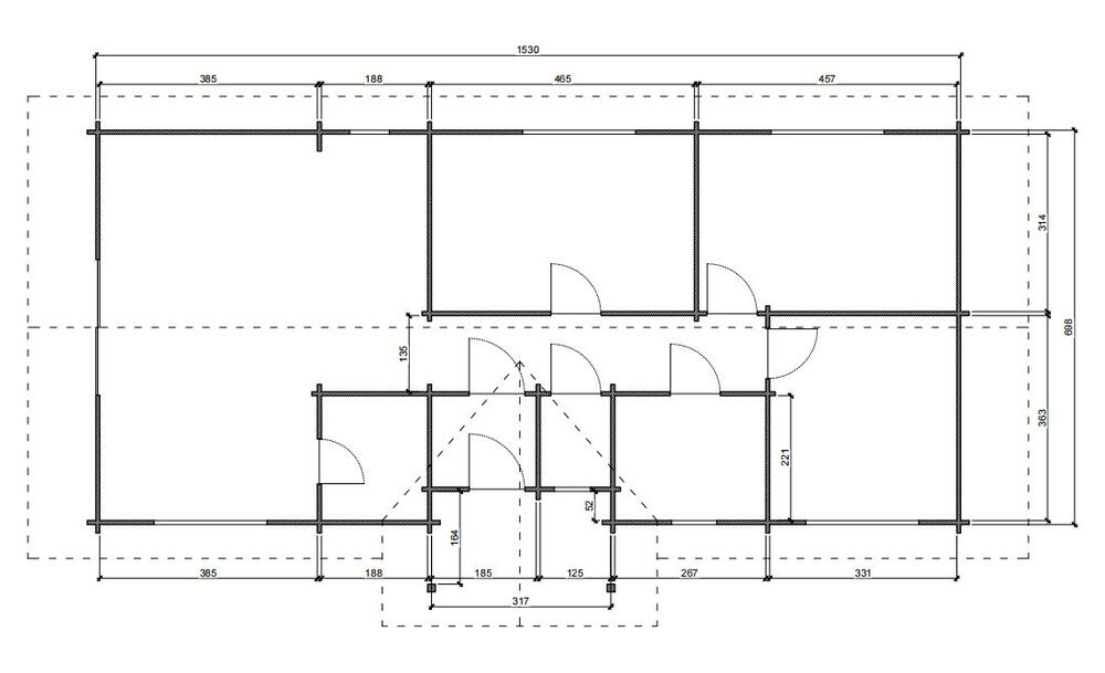
8 pomieszczeń – przestrzeń idealna dla Ciebie i Twoich planów
Na 105 m² znajduje się 8 starannie zaprojektowanych pomieszczeń, które możesz zaaranżować dokładnie tak, jak chcesz. Przestronna kuchnia z dużym stołem? Salon z wyjściem na ogród? Gabinet z widokiem na las? Tutaj nie musisz wybierać – masz miejsce na wszystko.
Parterowy układ to nie tylko wygoda – to świadomy wybór komfortu życia z maksymalnym wykorzystaniem przestrzeni. Idealny dla rodzin z dziećmi, seniorów, a także każdego, kto ceni codzienną funkcjonalność i łatwość poruszania się po domu.
Możliwość pełnej modyfikacji domu typu dworek
Każdy z nas marzy o czymś innym – i właśnie dlatego Dworek 105 m² daje Ci pełną swobodę modyfikacji. Możesz zmieniać konstrukcję, rozmieszczenie okien i drzwi czy układ pomieszczeń. To Ty nadajesz ton temu projektowi – DOM-POL pomoże Ci go zrealizować od wizji po montaż. Chcesz więcej światła? A może bardziej zamkniętą, intymną przestrzeń? To wszystko zależy od Ciebie – my zapewniamy technologię, jakość i wsparcie.
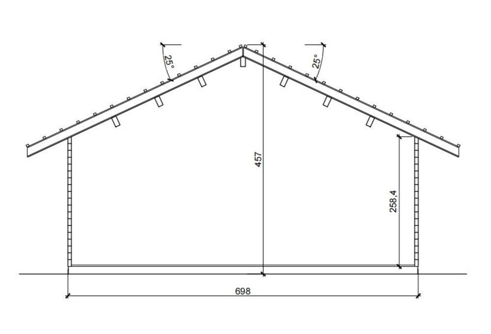
Dom – Dworek – całoroczny na lata użytkowania
Choć wymaga pozwolenia na budowę, Dworek to Dom Premium, który zostaje z Tobą na pokolenia. Drewniana konstrukcja w standardzie PREMIUM zapewnia dobrą izolację termiczną, trwałość, odporność na zmienne warunki pogodowe i wyjątkowy mikroklimat wewnątrz. To dom, który oddycha i panuje w nim przyjemna, naturalna atmosfera – chłodna latem, ciepła zimą.
Klasyczna forma, nowoczesna wygoda – dom, do którego chcesz wracać
Domek Dworek 105 m² zachwyca swoją prostotą, elegancją i ciepłem. To dom, który wygląda jak z bajki, lecz jego wnętrze to nowoczesna konstrukcja – jest przestronny, energooszczędny, wygodny i piękny. Stanowi idealne rozwiązanie dla tych, którzy chcą żyć spokojnie, otoczeni zielenią, we wnętrzach pełnych światła, drewna i dobrej energii.
Zamień plany i marzenia w rzeczywistość – wybierz domek całoroczny DWOREK!
Niezależnie od tego, czy planujesz przeprowadzkę z rodziną, budowę domu na lata czy szukasz spokojnego miejsca na emeryturę – Dworek daje Ci swobodę aranżacji i pewność solidnej, drewnianej konstrukcji w standardzie PREMIUM. Nie musisz wybierać między estetyką a funkcjonalnością – ten dom łączy obie koncepcje w jednym projekcie.
Skontaktuj się z nami – w DOM-POL stworzymy dla Ciebie dom, który będzie odpowiedzią na Twoje potrzeby. Doradzimy, dopasujemy projekt i zadbamy o każdy detal!




































