Kalkulacja netto, 23% vat budynek rekreacyjny, 8% vat budynek mieszkalny
Dom Expo o powierzchni 78,5 m² to projekt, który redefiniuje pojęcie nowoczesnego budownictwa z drewna. Jako konstrukcja w standardzie PREMIUM, model ten został zaprojektowany z myślą o inwestorach poszukujących pełnowartościowego, całorocznego domu mieszkalnego, który łączy w sobie unikalną estetykę z surowymi wymogami współczesnych norm budowlanych.
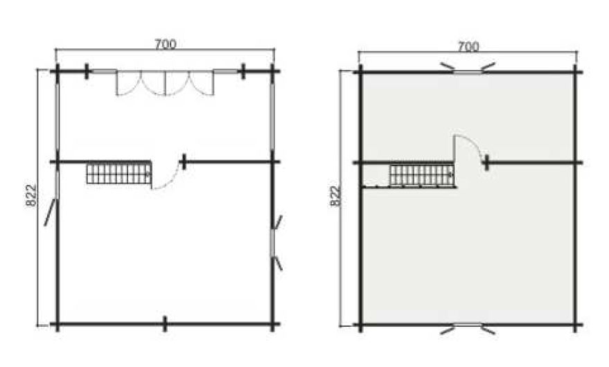
Przemyślane wymiary 700×822 cm pozwoliły na wykreowanie przestrzeni, która mimo swojej przytulności, oferuje pełną funkcjonalność trzech niezależnych pomieszczeń oraz dodatkowej antresoli. To budynek, który wymaga pozwolenia na budowę, co samo w sobie jest gwarancją jego solidności i spełniania wszystkich restrykcyjnych standardów bezpieczeństwa oraz trwałości konstrukcyjnej.
Wiedza i doświadczenie w służbie całorocznego komfortu
Wieloletnia obecność marki DOM-POL w branży pozwoliła nam wypracować sprawdzone rozwiązania, dzięki którym dom z bali przestaje być jedynie sezonową odskocznią, a staje się komfortowym domem mieszkalnym. Kluczem do sukcesu modelu Expo jest umiejętne połączenie naturalnych właściwości drewna z odpowiednio dobraną warstwą izolacyjną z wełny mineralnej. Dzięki naszemu doświadczeniu wiemy dokładnie, jak dobrać parametry izolacji, aby budynek oddychał, a jednocześnie zatrzymywał ciepło wewnątrz, spełniając wszelkie normy dla budownictwa jednorodzinnego. To właśnie ta techniczna precyzja sprawia, że wewnątrz panuje idealny mikroklimat zarówno podczas mroźnych zim, jak i upalnego lata, co bezpośrednio przekłada się na niskie koszty utrzymania domu.
Personalizacja konstrukcyjna domu z bali
W DOM-POL wierzymy, że standard PREMIUM to przede wszystkim wolność wyboru, dlatego model Expo stanowi elastyczną bazę do realizacji najbardziej wymagających wizji architektonicznych. Nasza technologia pozwala na pełną modyfikację projektu – od korekt w układzie konstrukcyjnym, przez dobór energooszczędnej stolarki okiennej, aż po indywidualne dopasowanie drzwi wejściowych.
Każdy detal jest analizowany pod kątem funkcjonalności, aby dom nie tylko zachwycał swoim naturalnym pięknem, ale był przede wszystkim inteligentną odpowiedzią na potrzeby nowoczesnej rodziny. Wybierając ten model, decydujesz się na budynek skrojony pod Twoje wymagania, który zachowuje swoją wartość przez dziesięciolecia.
Precyzja wykonania widoczna w każdym detalu
Jakość domów od DOM-POL to przede wszystkim selekcja surowca i dbałość o detale wykończenia, których nie widać na pierwszy rzut oka, a które decydują o komforcie życia. W modelu Expo każdy element konstrukcji jest idealnie spasowany, co eliminuje ryzyko powstawania nieszczelności i zapewnia stabilność budynku na lata. Stosujemy rozwiązania, które pozwalają drewnu pracować w sposób naturalny, nie wpływając przy tym na szczelność stolarki otworowej czy estetykę wnętrza. To techniczne zaawansowanie sprawia, że nasze letniskowe i całoroczne domy z bali cieszą się uznaniem inwestorów ceniących rzemiosło na najwyższym, europejskim poziomie.
Ekologiczny styl życia w całorocznym domu z bali
Wybór domu z bali Expo to także deklaracja świadomego podejścia do środowiska i własnego zdrowia. Naturalne drewno posiada zdolność do samoregulacji wilgotności i nie emituje szkodliwych substancji, co czyni go idealnym wyborem dla alergików i osób szukających wyciszenia od miejskiego zgiełku. Łącząc tę szlachetną tradycję z nowoczesnymi systemami instalacyjnymi i odpowiednią izolacją, tworzymy domy, które są nie tylko piękne i ekologiczne, ale przede wszystkim niezwykle praktyczne w codziennym użytkowaniu. Expo 78,5 m² to dowód na to, że natura i nowoczesna technologia mogą współistnieć w doskonałej harmonii.
Profesjonalne wsparcie w formalnościach i uzyskaniu pozwolenia na budowę domu z drewna
Budowa domu całorocznego Expo o tej powierzchni wymaga uzyskania pozwolenia na budowę, co dla wielu inwestorów bywa wyzwaniem biurokratycznym. W DOM-POL nie zostawiamy Cię z tym samym – nasze doświadczenie obejmuje nie tylko samo wykonawstwo, ale również wsparcie merytoryczne na etapie przygotowań. Pomagamy przejść przez proces formalny, dostarczając niezbędną dokumentację techniczną i doradzając, jak sprawnie przygotować się do inwestycji. Z nami droga od marzenia o własnym domu z bali do jego końcowej realizacji jest prosta i bezpieczna.
Chcesz rozpocząć budowę swojego wymarzonego domu Expo 78,5 m²? Skontaktuj się z nami już dziś – przygotujemy dla Ciebie indywidualną ofertę i pomożemy postawić pierwszy krok na drodze do własnej nieruchomości!




