Dom drewniany całoroczny RUBIO
Dom drewniany całoroczny RUBIO o powierzchni 62 m² to nowoczesny projekt dostępny w standardzie PREMIUM, idealny dla osób poszukujących funkcjonalnego i estetycznego rozwiązania mieszkaniowego. Dzięki przemyślanemu układowi pomieszczeń RUBIO zapewnia komfortowe warunki do życia przez cały rok. Jest to parterowy dom drewniany, który można postawić bez pozwolenia na budowę, a jego dodatkowym atutem jest wygodny taras o powierzchni 24 m².
Przemyślany układ i wysoka jakość wykonania
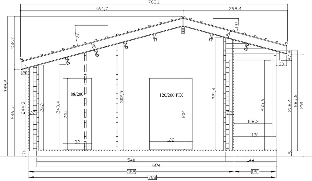
Projekt RUBIO wyróżnia się starannie zaplanowanym układem, który obejmuje 5 funkcjonalnych pomieszczeń zapewniających wygodę i komfort. Konstrukcja wykonana jest z najwyższej jakości drewna klasy A, pozyskiwanego ze Skandynawii, co gwarantuje trwałość, solidność oraz estetyczny wygląd na lata. Dach o kącie nachylenia 15 ° oraz wysokość budynku wynosząca 399 cm sprawiają, że ten drewniany dom mieszkalny jest przestronny, a jednocześnie doskonale wpisuje się w otoczenie.
Zobacz RUBIO na żywo
Wielką zaletą projektu jest możliwość obejrzenia go na żywo na ekspozycji domów pokazowych DOM-POL w Warszawie-Ursus. Budynek został odwzorowany w rzeczywistych wymiarach i z dbałością o jakość wykonania. Wnętrze pokazowego egzemplarza zostało przystosowane do funkcji biurowych – znajduje się w nim łazienka, kuchnia, osobna sala konferencyjna oraz pomieszczenie do obsługi klientów z ladą. To doskonała okazja, by przekonać się o walorach projektu RUBIO i zobaczyć, jak może zostać dostosowany do różnych potrzeb użytkowych – również na Twojej działce.
Dostosuj projekt domu całorocznego do swoich potrzeb
RUBIO to nie tylko gotowy projekt – to także elastyczne rozwiązanie, które możesz dostosować do swoich potrzeb. Istnieje możliwość konfiguracji wielu parametrów, takich jak układ pomieszczeń, rodzaj okien i drzwi czy inne elementy wykończeniowe. Dzięki temu Twój dom może być nie tylko funkcjonalny, ale również idealnie dopasowany do Twojego stylu życia i preferencji.
Gotowy na zamieszkanie przez cały rok
RUBIO to w pełni funkcjonalny dom mieszkalny, spełniający wszystkie wymogi WT2021, jest energooszczędnym i ekologicznym rozwiązaniem. Zaprojektowany z myślą o wygodzie mieszkańców doskonale sprawdzi się zarówno jako główne miejsce zamieszkania, jak i jako domek wypoczynkowy na działce.
Zrealizuj marzenie o własnym domu
Nie czekaj latami, aż marzenie o własnym domu się spełni – zacznij działać! Odwiedź naszą ekspozycję domów pokazowych w Warszawie-Ursus, aby zobaczyć RUBIO na żywo, porozmawiać z ekspertami i dopasować projekt do swoich potrzeb. RUBIO to idealne połączenie jakości, estetyki i funkcjonalności, które zapewni Ci wygodne życie przez cały rok.























