Domek Chatka 24m² to doskonałe rozwiązanie dla osób poszukujących funkcjonalnej i przytulnej przestrzeni wypoczynkowej. Dzięki kompaktowym wymiarom świetnie sprawdzi się na mniejszych działkach rekreacyjnych czy w ogródkach działkowych (ROD). Wysoka jakość wykonania, możliwość personalizacji oraz brak konieczności uzyskania pozwolenia na budowę sprawiają, że to idealna inwestycja dla każdego, kto marzy o własnym miejscu do relaksu przez cały rok.
Przemyślana przestrzeń dla maksymalnego komfortu
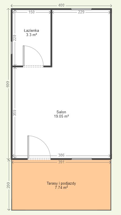
Domek o powierzchni 24m² (+ taras 8m²) został zaprojektowany tak, aby zapewnić wygodę użytkowania na co dzień. Wewnątrz znajdują się dwa pomieszczenia: jedno z nich doskonale sprawdzi się jako łazienka lub pomieszczenie gospodarcze, a drugie jako przestrzeń dzienna lub sypialna. Duże okna zapewniają naturalne doświetlenie wnętrza, a w części frontowej znajduje się miejsce na praktyczny aneks kuchenny.
Własny azyl bez zbędnych formalności
Jednym z największych atutów domku Chatka jest brak konieczności uzyskania pozwolenia na budowę. To sprawia, że jego postawienie na działce jest szybkie i bezproblemowe, a Ty możesz cieszyć się własnym miejscem do odpoczynku bez zbędnych formalności.
Indywidualna konfiguracja w standardzie PREMIUM
Domek całoroczny Chatka oferuje pełną możliwość personalizacji – możesz dostosować konstrukcję, układ okien czy lokalizację drzwi zgodnie ze swoimi potrzebami. Wysoka jakość materiałów i wykonania w standardzie PREMIUM zapewnia trwałość oraz komfort użytkowania przez długie lata.
Zamów swój wymarzony domek już dziś!
Domek całoroczny Chatka 24m² to połączenie funkcjonalności, wysokiej jakości i wygody. Skontaktuj się z nami, aby dostosować projekt do swoich oczekiwań i ciesz się własnym, drewnianym azylem przez cały rok!














