Kalkulacja netto, 23% vat budynek rekreacyjny, 8% vat budynek mieszkalny.
Zmień perspektywę patrzenia na architekturę ogrodową i odkryj Calpe – prestiżowy projekt domku letniskowego z bali, który stanie się fundamentem dla Twojej prywatnej oazy spokoju. To zaproszenie do świata, w którym zapach naturalnego drewna spotyka się z nienagannym designem, tworząc scenografię dla Twoich najcenniejszych chwil wolnych od zgiełku miasta.
Architektura, która rozumie naturę – domek letniskowy z bali od DOM-POL
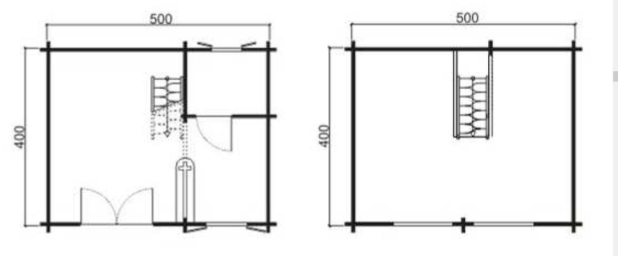
Konstrukcja Calpe o wymiarach 500×400 cm to manifest funkcjonalnej elegancji. Postawiliśmy na idealną równowagę między intymnym wnętrzem a otwartą przestrzenią, oferując 20 m² powierzchni użytkowej na parterze oraz drugie tyle na piętrze. Trzy wydzielone pomieszczenia dają swobodę, o jakiej trudno marzyć w standardowych rozwiązaniach – to Ty decydujesz, gdzie znajdzie się serce domu, a gdzie strefa wyciszenia.
Dzięki zadaszeniu o głębokości 70 cm bryła zyskuje światłocień, który podkreśla szlachetną strukturę bali. Co istotne, cały ten potencjał architektoniczny dostępny jest bez konieczności ubiegania się o pozwolenie na budowę, co skraca drogę do realizacji marzeń do minimum.
Standard PREMIUM – jakość bez kompromisów
W DOM-POL standard PREMIUM nie jest jedynie deklaracją trwałości, ale przede wszystkim wolnością wyboru. Traktujemy projekt Calpe jako elastyczną bazę, która pod Twoim wpływem ewoluuje w unikatowe dzieło rzemiosła. Wybierając tę klasę wykończenia, zyskujesz pewność, że każdy element konstrukcyjny przeszedł rygorystyczną selekcję, jednak to Twoje potrzeby nadają mu ostateczny szlif.
Standard PREMIUM pozwala na pełną ingerencję w strukturę: od modyfikacji układu ścian, przez indywidualny dobór klasy i rozmieszczenia stolarki okiennej, aż po niestandardowe rozwiązania w zakresie drzwi. Nie oferujemy sztywnego wzorca – dostarczamy najwyższej próby rzemiosło, które dopasowuje się do Twojej wizji, zapewniając przy tym doskonałą izolacyjność i mikroklimat właściwy tylko dla najlepszych realizacji z drewna.
Inżynieria zrównoważonego komfortu
Wybór domku Calpe to świadoma inwestycja w technologię, która redefiniuje pojęcie komfortu w budownictwie drewnianym. Kluczowym wyróżnikiem naszych realizacji jest zaawansowany system izolacji, który wykracza poza rynkowe standardy. Dzięki precyzyjnemu doborowi materiałów izolacyjnych o wysokiej gęstości oraz autorskim technikom uszczelniania połączeń, tworzymy barierę termiczną, która pracuje dla Ciebie przez cały rok.
Wspierany naturalnymi właściwościami drewna system zapewnia przyjemny i zdrowy mikroklimat we wnętrzu. Drewno w naturalny sposób reguluje poziom wilgotności.
Nasza technologia kładzie szczególny nacisk na eliminację mostków termicznych w newralgicznych punktach styku bali oraz przy stolarce otworowej. Dzięki temu Calpe nie jest jedynie zwykłym letniskowym domkiem z bali, lecz solidną konstrukcją, która zapewnia zdrowy, naturalny mikroklimat we wszystkich trzech pomieszczeniach, niezależnie od kaprysów pogody.
Wolność aranżacji w objęciach drewna
Domek letniskowy z bali Calpe to przestrzeń, która żyje wraz z właścicielem. Dzięki przemyślanemu podziałowi na trzy sekcje, wnętrze z łatwością adaptuje się do roli luksusowego domku gościnnego, nowoczesnego studia pracy twórczej czy letniej rezydencji z pełnym zapleczem sanitarnym.
Inwestując w Calpe, wybierasz konstrukcję, która nie tylko podnosi wartość estetyczną działki, ale staje się trwałym składnikiem Twojego dobrostanu, łącząc tradycyjną duszę drewna z nowoczesną elastycznością projektową.
Stwórz swoją wersję domku letniskowego Calpe z ekspertami DOM-POL!
Nie ograniczaj się do standardów – Twoja działka zasługuje na projekt, który w pełni wykorzysta jej potencjał. Skontaktuj się z naszymi doradcami technicznymi, aby omówić możliwości modyfikacji konstrukcji, dobrać optymalne przeszklenia i dopasować domek Calpe do Twoich indywidualnych potrzeb!





